
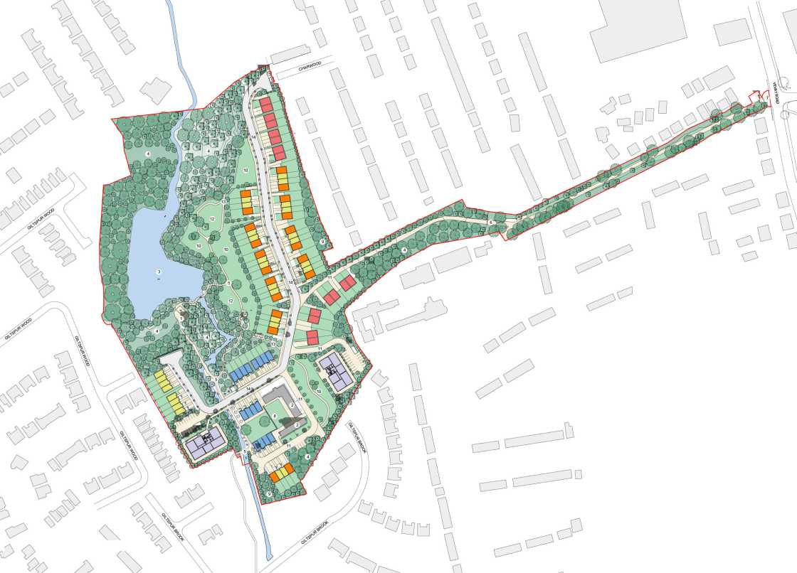
Oldcourt House - Bray
Oldcourt House is located in Bray, approximately 20 miles south of Dublin’s city centre. Comprising a total of 16 acres, Rego Property were successful in getting c. 10 acres of this land rezoned for residential use (previously designated as Open Space).
Oldcourt House itself is a Grade 2 listed building comprising c.11,000 sq ft which will be fully refurbished and converted to 8 apartments
The overall development will comprise 124 residential units:
2 Bed House | 28 | 850 sq ft |
3 Bed House | 36 | 1,100 sq ft |
4 Bed House | 16 | 1,400 sq ft |
2 Bed Apartment | 12 | 850 sq ft |
1 Bed Apartment | 8 | 650 sq ft |
Conversion – 2 bed apartments | 8 | 1,200 sq ft |
Total | 124 |

Gallery
The proposed development will deliver much needed new residential development with the town centre of Bray for families and first time buyers.
Public access to the castle area and new walkways along the swan river couple with generous open space and landscaping will also be provided.
There will be cultural benefits to wider community in providing access to the estate and castle for residents within the town





